
(画像をクリックすると大きい写真が表示されます)
| 物件種類 | 売中古住宅 |
| 土地権利 | 所有権 |
| 価格 | 680万円 |
| 物件所在地 | 北見市末広町349-35 |
| 構造 | 木造亜鉛メッキ鋼板葺2階建 |
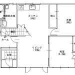
| 建物面積 | 96.79㎡(29.27坪) |
| 土地面積 | 279.41㎡(84.52坪) |
| 築年月日 | 昭和59年7月5日 |
| 都市計画 | 市街化区域 |
| 用途地域 | 第1種住居専用地域 |
| 建ぺい率 | 60% |
| 容積率 | 200% |
| 接道状況 | 南側公道 幅員8.0m 間口14.5m 北側公道 幅員10.0m 間口14.5m |
| 地目 | 宅地 |
| 設備 | 上・下水道、電気、プロパン |
| 交通 | JR石北本線 北見駅 車11分 |
| 北見バス「北光中学校」停 徒歩2分 | |
| 学校区 | 北光小学校、北光中学校 |
| 引渡日 | 即時 |
| 取引形態 | 仲介 |
| 現況 | 空家 |
| 仲介手数料 | 330,000円(税込) |
| 備考 | 物置付 |




